View more properties

Eddington Road, Nettlestone, PO34 5EB

£345,000

icon-house House - Terraced
icon-sofa 2 Reception(s)
icon-bed 3 Bedroom(s)
icon-bath 2 Bathroom(s)

Key Features

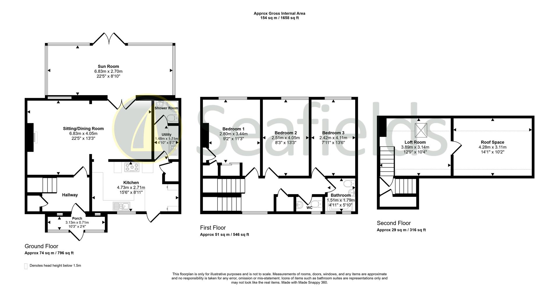
  • Surprisingly Spacious 3 Storey Cottage
  • 3 Double Bedrooms plus a Loft Room
  • A Good Sized West Facing Rear Garden
  • Lovely Open Plan Sitting/Dining Room
  • Modern Kitchen * Utility Room * Sun Room
  • 2 Bath/Shower Rooms * 3 WCs
  • Parking X 2 * Gas Central Heating
  • Ideally Close to Beaches/Countryside
  • Near Primary School and Amenities
  • Council Tax: C * EPC rating D * Freehold

Property Details

DELIGHTFUL FAMILY HOME NEAR COAST AND COUNTRYSIDE!

Set within a good sized plot, this attractive terraced cottage benefits from surprisingly spacious accommodation laid out over 3 floors. The welcoming hallway opens into an impressive 22'5 open-plan sitting/dining room leading to a substantial sun room. There is a modern fitted ... show more

Download a Brochure
Eddington Road, Nettlestone, PO34 5EB