View more properties

Seafield Road, Seaview, PO34 5HD

£525,000

icon-house House
icon-sofa 1 Reception(s)
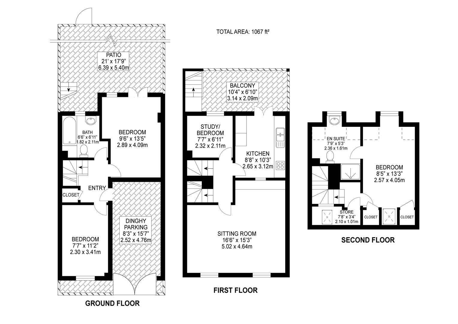
icon-bed 4 Bedroom(s)
icon-bath 2 Bathroom(s)

Key Features

  • Sunny 4 Bedroom Seaside Home
  • Spacious/Bright 1st Floor Sitting Room
  • Brand New Windows & External Doors
  • Balcony * Patio * Dinghy Port * Parking
  • Dinghy Port * Underground Carpark
  • Top Floor Master Bedroom + En suite
  • Moments from Beach, YC, Amenities
  • Council Tax Band: E * EPC: C (73)
  • Freehold * Lovely Seaside Lifestyle
  • Management Fee For Communal Areas

Property Details

A GREAT SEAVIEW VILLAGE OPPORTUNITY!

Enjoy this bright 4 BEDROOM, 2 BATHROOM home laid out over 3 storeys and located paces from an expansive beach and popular Yacht Club plus a short walk to all village amenities. There is a wonderfully spacious and bright open-plan first floor ... show more

Download a Brochure
Seafield Road, Seaview, PO34 5HD